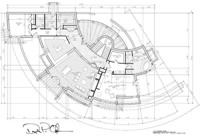
[slideshow] O:Projects2005 Projects5026_Phelps5026_pdfA1.02_main_leve Phelps_Sketches_01_800 Phelps_Elevations_01_800 [/slideshow] Custom Residence designed for rural lot near Cañon City, Colorado Unbuilt, Architecture, Residential